Bồn tắm Toto PAY1710HV#W/TVBF411
SKU:PAY1710HV#W/TVBF411Trả góp 0đ
-19%
13,710,000₫
16,887,000₫
Mô tả sản phẩm
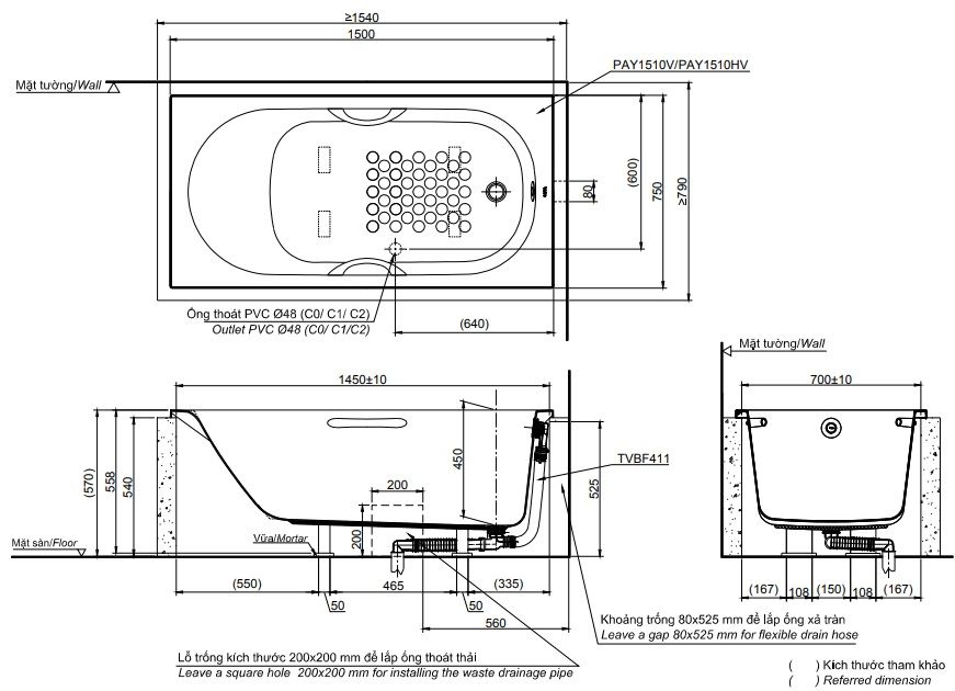
Bồn tắm TOTO PAY1710HV#W/TBVF411 thiết kế sang trọng với độ sâu phù hợp, bề mặt chống trơn trượt và có điểm tựa đầu thư giãn và sảng khoái, giúp bạn tận hưởng sau mỗi ngày làm việc mệt mỏi và vất vả. Sản phẩm là loại bồn tắm nhựa có tay vịn thiết kế 2 bên. Các dòng sản phẩm bồn tắm TOTO với kiểu dáng sang trọng thanh lịch mang đến một không gian riêng tư tiện nghi, hoàn hảo.
Mã sản phẩm: PAY1710HV#W/TVBF411
Thương hiệu: Toto
Kích thước: 1700 x 750 x 558mm
Chất liệu: Nhựa cao cấp Arcylic
Công nghệ: Đài Loan
Xuất xứ: Việt Nam
Bản vẽ kỹ thuật
